Reihenmittelhaus in Pogeez am Westufer Ratzeburger See
Objekt-ID: IM-REMO-1008202323881011
  • - Der Einbau der Wohneinheiten erfolgte 1995 
  • -Ca. 100 m² ruhig gelegene Wohnfläche 
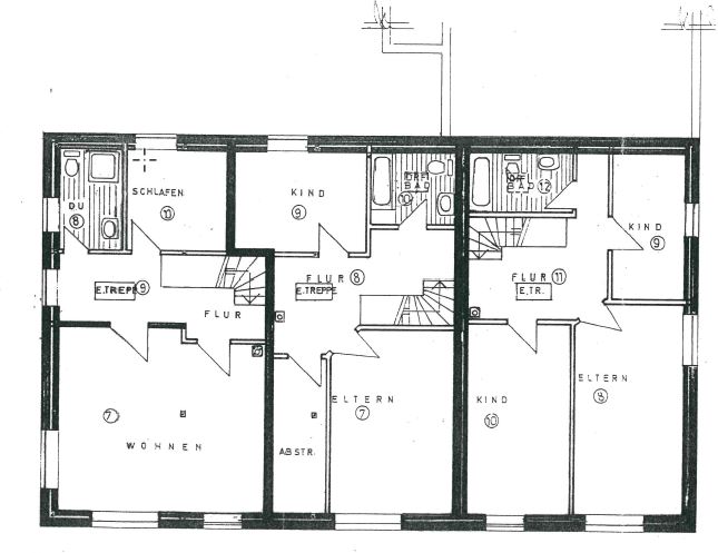
  • - EG: Windfang - Flur mit Trepppe ins OG - Küche - Gäste   WC - Wohnzimmer mit Zugang zur Sonnen-Terrasse
  • - OG: Flur - Schlafzimmer - begehbarer Kleiderschrank -  Vollbad - Abstellkammer - Kinderzimmer- Einschubtreppe   zum Spitzboden 
  • - PKW-Stellplatz - Gartenlaube im Vordergarten 
  • -Neue Wandheiz-Gas-Therme ( Feb . 2023 )
  • Kaufpreis:
    275.000,- €

  • Provisionsfrei 

Ich freue mich auf Ihre Anfrage

Alle Bilder für dieses Angebot sind mir mit freundlicher Genehmigung meines Auftraggebers zur Verfügung gestellt worden.


 Das RMH ist 1995 als eine Umbaumaßnahme zusammen mit anderen Reihenhäusern aus einer bäuerlichen Resthofanlage (Feldrandscheune) entstanden. Von den 3 Wohnungen, die in diesem Trakt entstanden, ist es die Mittlere (Nr.6) mit direktem Zugang zur Terrasse, über die man auch das Gartenhäuschen erreicht.

Im Lageplan ist das RMH mit der Nr. 6 gekennzeichnet und bietet eine Gesamtwohnfläche von ca. 100m².

Den Wohnungseingang erreicht man über den Innenhof in dem auch einige kleine Gärten angelegt sind.

Hinter dem Windfang begibt man sich in den Flur mit seiner Geschosstreppe zum OG und der Küche, dem Gäste WC und dem Wohnzimmer.

Die Küche ist mit einer Einbauküche und einem Esstisch ausgestattet.

Der Windfang, Flur, Küche und Gäste-WC sind mit hellen Bodenfliesen ausgelegt.

Das Wohnzimmer ist mit Echtholz-Fertigparkett ausgelegt. Der Torbogen (ehemals das Eingangsportal)  ist jetzt ein dekoratives voll verglastes Türportal und führt auf die Terrasse.

Im OG finden wir ebenfalls einen Echtholz-Fertigparkett Fußboden im Flur.

Das Vollbad mit Badewanne, Eckdusche, Waschtisch und WC ist im Fußbereich und an den Wänden gefliest. Ein Lichtschacht mit Dachfenster nach oben sorgt für natürliches Licht.

Das Schlafzimmer und Kinderzimmer ist mit Echtholz-Fertigparkett ausgelegt. Eine Kammer wird als ein begehbarer Kleiderschrank genutzt.

Geheizt wird mit eine Gastherme (Baujahr 02.2023)

Der Allgemeinzustand des RMH ist mit gut zu bezeichnen.


 Die Lage (Alte Salzstraße 2c)

Pogeez liegt am Westufer des Ratzeburger Sees im Naturpark Lauenburgische Seen. Durch den Ort führt die Landesstraße 331 (Alte Salzstraße). Seit dem die Bundesstraße 207  den Ort weitläufig in westlicher Richtung umgeht hat sich das Wohnklima außerordentlich positiv verändert. Die Bundesstraße 207 führt direkt zur Bundesautobahn 20 und zur Hansestadt Lübeck. Das UKSH ist in 20 Min mit dem Auto zu erreichen.

Ebenso sind die Ostseehäfen und Strände von Travemünde, Niendorf, Timmendorfer Strand, Scharbeutz, Sierksdorf u.s.w. für Tagesausflüge gut erreichbar.

Erhebliche regionale – und auch überregionale – Bedeutung kommt der Badestätte Pogeez zu. Gegründet im Jahre 1953 und jahrzehntelang mit
viel ehrenamtlichem Idealismus ausgebaut sowie geleitet von den Brüdern Helmut und Horst Kömme, beherbergt die Badestätte Pogeez einen wichtigen Stützpunkt der Deutschen Lebens-Rettungs-Gesellschaft (DLRG). Darüber hinaus gilt die Badestätte Pogeez wegen ihrer ausgeprägten kinder- und familienfreundlichen Ausrichtung als die vorbildlichste Einrichtung dieser Art weit über die Grenzen des Kreises Herzogtum Lauenburg hinaus.

Als ein hervorragendes Segelrevier wird der Ratzeburger See bei allen segelbegeisterten in den Sommermonaten stark frequentiert.

Das Kartoffelhäuschen mit seiner gut Bürgerlichen Küche ist weit über Pogeez hinaus für seine Kartoffelgerichte bekannt.





Collapse content.